Euroimmobiliare Como
  • Home
  • Chi siamo
    • Privacy Policy
    • Cookie Policy
  • Servizi
  • Gallery
  • Nuova costruzione
  • Blog & News
  • Contatti
Euroimmobiliare Como
  • Home
  • Chi siamo
    • Privacy Policy
    • Cookie Policy
  • Servizi
  • Gallery
  • Nuova costruzione
  • Blog & News
  • Contatti

Villa indipendente a Cernobbio Rovenna con vista lago e giardino

Ricerca in base alle caratteristiche
  • Home
  • Cernobbio

Villa indipendente a Cernobbio Rovenna con vista lago e giardino

Via per il Bisbino, Monti di Madrona, Rovenna, Cernobbio, Como, Lombardia, 22012, Italia

Vendita

€1,100,000

See All Photos (36)See All Photos (36)

ID Immobile:

 Nessuno

Camere da letto
3
Bagni
2
Area
280 mq

Descrizione

Villa singola con vista lago a Cernobbio – spazio, privacy e versatilità

Se stai cercando una soluzione abitativa che unisca tranquillità, panorama e ampi spazi, questa villa singola a Rovenna, frazione collinare di Cernobbio, rappresenta una proposta davvero interessante. Inserita in un contesto riservato e panoramico, la proprietà gode di una splendida vista sul lago e di una posizione ideale per chi desidera vivere lontano dal traffico, senza rinunciare alla comodità dei servizi.

Due appartamenti indipendenti, una sola proprietà

Uno degli elementi più interessanti di questa villa è la sua struttura interna, pensata per offrire massima flessibilità. L’immobile è infatti suddiviso in due appartamenti distinti, entrambi con ingresso indipendente ma collegati anche internamente. Una soluzione perfetta per famiglie numerose, per chi desidera ospitare parenti in modo autonomo oppure per chi sta valutando un investimento con possibilità di locazione parziale.

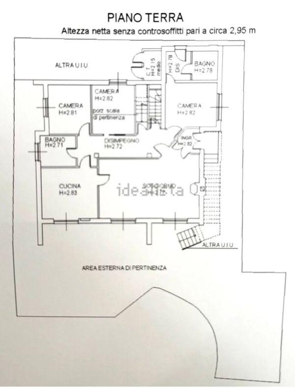
Piano terra ristrutturato: comfort e accoglienza

L’appartamento al piano terra è stato recentemente ristrutturato e si presenta in ottime condizioni. L’ingresso conduce a un salone ampio e luminoso, impreziosito da un camino che crea un’atmosfera calda e conviviale, ideale per i mesi più freddi.

La cucina abitabile, funzionale e ben organizzata, si affaccia su un terrazzo perfetto per pranzi e cene all’aperto, con una vista rilassante sul verde circostante. La zona notte comprende tre camere da letto, tra cui una con bagno padronale, oltre a un secondo bagno e un comodo disimpegno attrezzato con armadiature su misura.

Primo piano: ampi spazi e grande potenziale

Salendo al primo piano troviamo il secondo appartamento, anch’esso con ingresso indipendente. Gli ambienti sono generosi e ben distribuiti: un ampio soggiorno con accesso al terrazzo panoramico rappresenta il cuore della casa, affiancato da una cucina abitabile spaziosa e funzionale.

La zona notte offre tre camere da letto, ideali per una famiglia. Questo livello si presta inoltre a interventi di ammodernamento, con la possibilità di realizzare un secondo bagno e personalizzare gli spazi secondo le proprie esigenze, valorizzando ulteriormente l’immobile.

Giardino privato di circa 1.000 m²: vivere all’aperto

Uno dei veri punti di forza della proprietà è l’ampio giardino privato, di circa 1.000 m². Lo spazio esterno è suddiviso in due aree: una direttamente adiacente alla casa, perfetta per momenti di relax quotidiano, e una zona in prossimità dell’ingresso.

La metratura e la conformazione del terreno offrono diverse possibilità, tra cui la realizzazione di una piscina, creando così un’oasi privata dove godere appieno delle giornate estive con vista lago.

Comodità e praticità per la vita quotidiana

La villa dispone di posti auto e box, elementi sempre più ricercati che garantiscono praticità e sicurezza. La superficie commerciale complessiva è di circa 280 m², con ambienti ben distribuiti e una struttura che si presta sia all’uso residenziale sia a soluzioni miste tra abitazione e investimento.

Le condizioni generali dell’immobile sono buone, con il vantaggio di poter intervenire solo dove necessario, senza affrontare ristrutturazioni invasive.

Una posizione strategica sul Lago di Como

Rovenna è una delle zone più apprezzate di Cernobbio per la sua tranquillità e per il contesto naturale che la circonda. Da qui è possibile raggiungere facilmente il centro di Cernobbio e le principali vie di collegamento, mantenendo però una qualità della vita più rilassata e riservata.

La vista aperta sul lago rappresenta un valore aggiunto che rende questa proprietà ancora più interessante, sia come prima casa sia come residenza secondaria.

Una soluzione da vivere e valorizzare nel tempo

Questa villa singola con vista lago a Cernobbio è una proposta che unisce caratteristiche difficili da trovare insieme: indipendenza, metrature generose, giardino privato e possibilità di personalizzazione. Una casa che può adattarsi a diverse esigenze abitative e che offre anche interessanti prospettive di valorizzazione nel tempo.

Scopri di più e richiedi una valutazione gratuita

Se questa proprietà ti ha incuriosito e desideri ricevere maggiori informazioni o organizzare una visita, puoi contattare il team di Euroimmobiliare Comasca. Inoltre, se stai pensando di vendere casa, è disponibile un servizio di valutazione gratuita del tuo immobile, utile per conoscere il reale valore di mercato in modo semplice e senza impegno.

Visita il sito e i canali social per restare aggiornato sulle nuove opportunità disponibili sul territorio.

Dettagli aggiuntivi

  • Classe energetica: F (265 kWh/m2 anno)

Caratteristiche

  • Box
  • Camino
  • Giardino
  • Posto auto
  • Terrazzo

Mappa

Agenti

Cerca la tua casa

La ricerca avanzata è già abilitata nell’intestazione.

Tipologia

  • Appartamento
  • Attico
    • New Property Type Name
  • Baita
  • Bilocale
  • Box auto
  • Bungalow
  • Casa indipendente
  • Laboratorio
  • Locale commerciale
  • Magazzino
  • Monolocale
  • Negozio/ Ufficio
  • Porzione di Casa
  • Quadrilocale
  • Rustico
  • Stabile
  • Terreno
  • Trilocale
  • Ufficio
  • Villa
  • Villa in costruzione
  • Villetta a schiera

Proprietà in evidenza

In evidenza
Visualizza Immobile

Villa ad Appiano Gentile – Prestigiosa Proprietà con Piscina, Parco Privato e Vicinanza al Confine Svizzero

Villa con piscina Vi proponiamo una bellissima villa con piscina ad…

Camere da letto
5
Bagni
3
Area
300 mq
Vendita

€1,200,000

©2025 Euroimmobiliarecomasca snc Via XX Settembre, 49 22026 Maslianico (CO) | P.Iva/CF 02815530130 | Iscritta alla CCIAA di Como REA di Como n. 280550 PEC: | Alcune immagini del sito sono utilizzate su licenza di Shutterstock.com e rispettivi autori | Powered by ShareNow!

|
Quadrilocale a Cernobbio – Rovenna con giardino privato e ingresso indipendente Appartamento bilocale a Como con balcone e posto auto

Owning a home is a keystone of wealth… both financial affluence and emotional security.

Suze Orman
21 Maggio 2026 giovedì!
Euroimmobiliare Como
  • Accedi
Password Dimenticata?